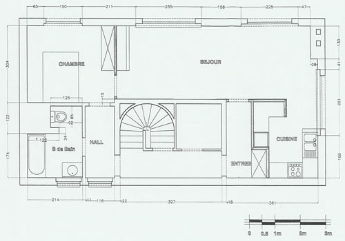
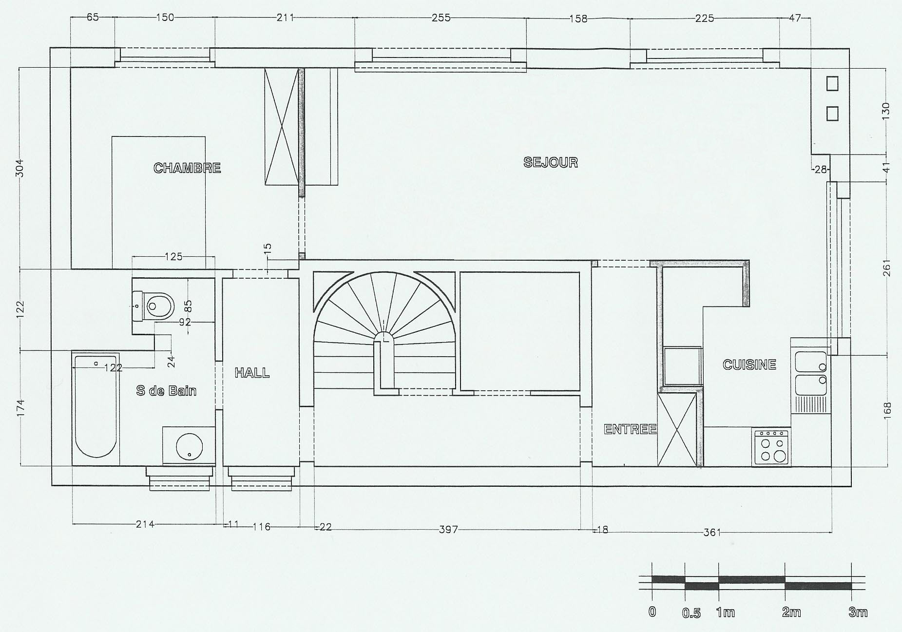
Penthouse meublé à Louer (1180 Uccle):

184 Avenue Montjoie

5eme étage - 58m² + 28m²de terrasse

• Hall, Vestiaire, placards
• Living, Feu ouvert, Cuisine super équipée, Air conditionné (Chaud/Froid), Accès terrasse
• Très grande terrasse plein sud
• Une grande chambre avec lit double 180x200, Air conditionné (Chaud/Froid), Accès terrasse
• Salle de bain équipée + WC
• Parquet et carrelage dans la cuisine et SDB - 1 Box Garage & une cave privative

Pour plus d'informations: Mr Hellawell - 02/380 98 60 ou 0497 41 87 26

         
 

 

Atlantisworks 2004